Sa composition en acier zingué le rend plus résistant aux déformations que les montants de butée en bois.
Unique
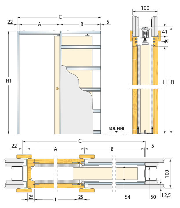
Porte coulissante à galandage.
Présentation
Caractéristiques
Portes et accessoires




